Espace propriétaire
fr

Votre recherche

Portiragnes (34420)

3 pièces - 61,67 m²

Villa neuve à vendre

265 000 €
Ref : V230011242
A propos de ce bien

Située à Portiragnes (34420), disponible pour Mars 2026

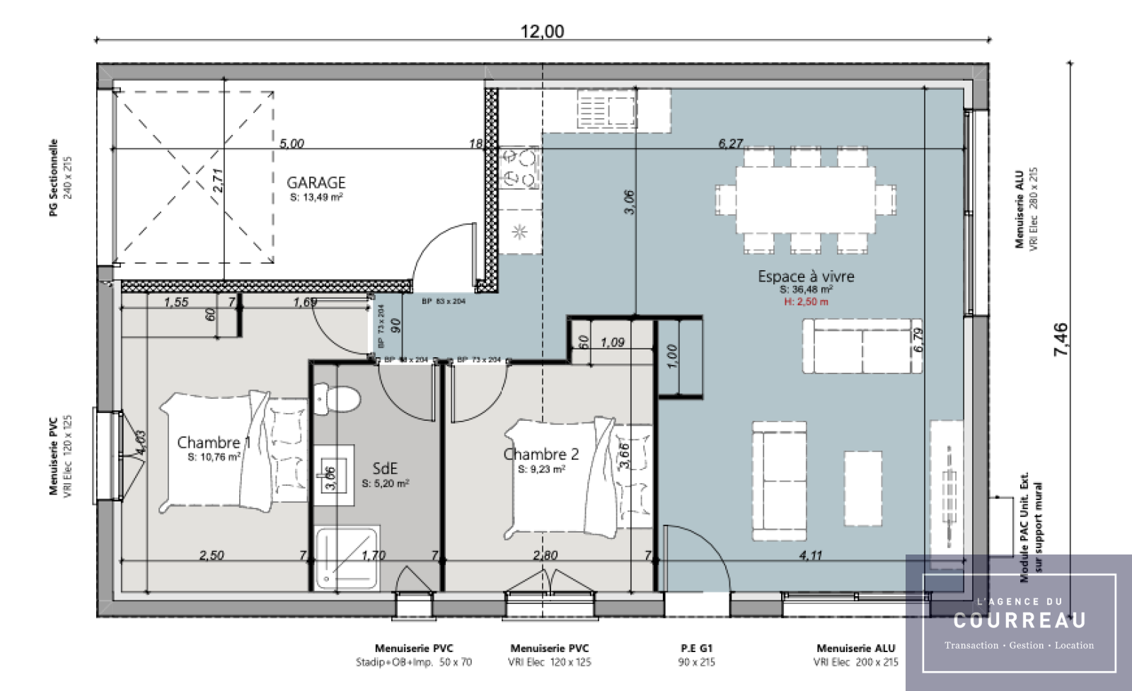
Nouvelle Villa de plain-pied avec garage,

Sur une parcelle de 244 m², la propriété est accolé sur une face, elle comprend deux places de parking et un garage.

La villa de plain-pied de 61 m² est entourée d'un jardin offrant un espace extérieur plein Sud

À l'intérieur, la maison propose un séjour lumineux climatisé avec une cuisine équipée, deux chambres confortables, une salle d'eau et un WC. Cette propriété offre un cadre de vie fonctionnel et contemporain, idéal pour une résidence principale ou une maison de vacances.

Descriptif de ce bien
Général
Code postal 34420
surface terrain 244 m²
Surface loi Carrez (m²) 61,67 m²
Nombre de chambre(s) 2
Nombre de pièces 3
Nombre de niveaux 1
Vue Dégagée
Détails
Nb de salle d'eau 1
Type de cuisine Equipée
Mode de chauffage Autre
Type de chauffage Autre
Format de chauffage Individuel
Terrasse OUI
Murs mitoyens 1
Nombre de garage 1
Nombre de parking 1
Exposition Sud-Est
Terrain piscinable OUI
Terrain arboré OUI
Terrain divisible NON
Composition
Etage 1
chambre 10.76 m²

Exposition Nord Ouest

chambre 9.23 m²

Exposition Sud Ouest

garage 13.5 m²

Garage Carrelé

salon/sejour 36.48 m²

Espace a vivre Exposition Sud Est Vue dégagée sans vis a vis Cuisine equipée

salle de bain 5.20 m²

Vasque WC Douche

Financier
Prix de vente honoraires TTC inclus 265 000 €
Energie
DPE GES
Autour du bien
  • Commerces et santé
  • Loisirs
  • Ecoles
  • Transports
  • Pratique
Contacter pour ce bien
L'agence
Téléphone 0467020717
Adresse
51 rue du Faubourg Courreau 34000 Montpellier

* Champ obligatoire

Les informations recueillies sur ce formulaire sont enregistrées dans un fichier informatisé par La Boite Immo agissant comme Sous-traitant du traitement pour la gestion de la clientèle/prospects de l'Agence / du Réseau qui reste Responsable du Traitement de vos Données personnelles. La base légale du traitement repose sur l'intérêt légitime de l'Agence / du Réseau. Elles sont conservées jusqu'à demande de suppression et sont destinées à l'Agence / au Réseau. Conformément à la loi « informatique et libertés », vous disposez des droits d’accès, de rectification, d’effacement, d’opposition, de limitation et de portabilité de vos données. Vous pouvez retirer votre consentement à tout moment en contactant directement l’Agence / Le Réseau. Consultez le site https://cnil.fr/fr pour plus d’informations sur vos droits. Si vous estimez, après avoir contacté l'Agence / le Réseau, que vos droits « Informatique et Libertés » ne sont pas respectés, vous pouvez adresser une réclamation à la CNIL. Nous vous informons de l’existence de la liste d'opposition au démarchage téléphonique « Bloctel », sur laquelle vous pouvez vous inscrire ici : https://www.bloctel.gouv.fr Dans le cadre de la protection des Données personnelles, nous vous invitons à ne pas inscrire de Données sensibles dans le champ de saisie libre.
Ce site est protégé par reCAPTCHA, les Politiques de Confidentialité et les Conditions d'Utilisation de Google s'appliquent.

Découvrir nos outils