Espace propriétaire
fr

Votre recherche

Perpignan (66000)

2 pièces - 52,67 m²

APPARTEMENT T2 53M² AVEC TERRASSE 45 M² -PERPIGNAN HAUT VERNET

99 000 €
Ref : V240011955
A propos de ce bien

L’Agence du Courreau vous propose en exclusivité, sur la commune de Perpignan, secteur Haut-Vernet, ce très bel appartement de type T2 au fort potentiel, idéalement situé dans un environnement calme et pratique au quotidien.

Au quatrième étage d’une résidence sécurisée avec ascenseur, ce bien offre un cadre de vie agréable ainsi qu’une belle luminosité tout au long de la journée. Dès l’entrée, vous serez séduit par un spacieux séjour, offrant un volume confortable pour aménager un espace de vie convivial et chaleureux. La cuisine, indépendante, permet une organisation fonctionnelle et peut être repensée selon vos envies afin de créer un espace moderne et optimisé.

L’appartement comprend également une chambre confortable, idéale pour un espace nuit paisible, ainsi qu’une salle de bain. Des travaux de rafraîchissement sont à prévoir, offrant ainsi l’opportunité de personnaliser entièrement ce bien et d’en révéler tout le potentiel.

Le véritable atout de cet appartement réside dans sa superbe terrasse de 45 m², sans vis-à-vis. Cet espace extérieur rare constitue un véritable prolongement du logement, parfait pour profiter des beaux jours, partager des moments conviviaux ou simplement se détendre en toute intimité.

Une place de parking privative complète ce bien, apportant un confort supplémentaire non négligeable dans le secteur.

Que vous soyez un jeune couple à la recherche de votre premier achat ou un investisseur souhaitant réaliser un placement locatif pertinent, cet appartement représente une opportunité à saisir rapidement.

Contactez dès maintenant l’Agence du Courreau pour organiser une visite !

Descriptif de ce bien
Général
Code postal 66000
Nombre de chambre(s) 1
Nombre de pièces 2
Etage 4
Ascenseur OUI
Vue Dégagée
Détails
Nb de salle de bains 1
Cuisine Séparée
Type de cuisine Equipée
Mode de chauffage Electrique, Electrique
Type de chauffage Convecteur, Convecteur
Format de chauffage Individuel, Individuel
Interphone OUI
Balcon NON
Terrasse OUI
Cave NON
Nombre de parking 1
Exposition Est
Année de construction 1960
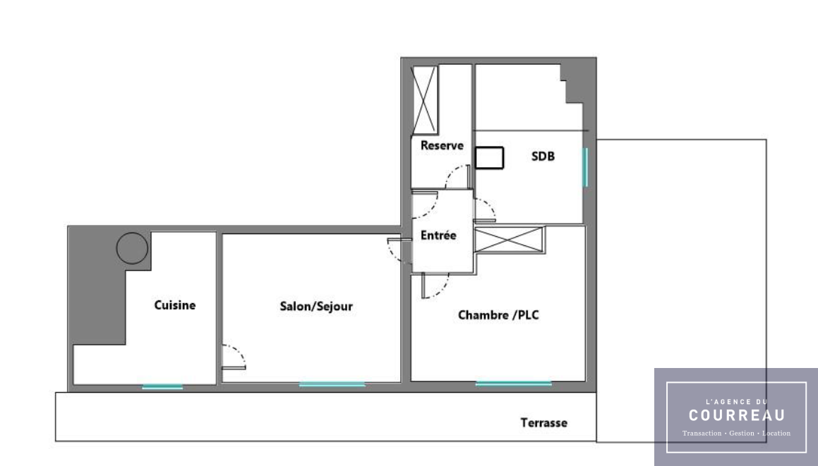
Composition
Rez de chaussée
salon/sejour 15.39 m²

chambre 12.69 m²

salle de bain 8.54 m²

cuisine 8.81 m²

terrasse 44.90 m²

Financier
Prix de vente honoraires TTC inclus 99 000 €
Prix de vente honoraires TTC exclus 90 000 €
Honoraires TTC à la charge acquéreur 10 %
Taxe foncière annuelle 1 281 €
Energie
DPE GES
Copropriété
Copropriété OUI
nombre de lots 136
Autour du bien
  • Commerces et santé
  • Loisirs
  • Ecoles
  • Transports
  • Pratique
Contacter pour ce bien
L'agence
Téléphone 0467020717
Adresse
51 rue du Faubourg Courreau 34000 Montpellier

* Champ obligatoire

Les informations recueillies sur ce formulaire sont enregistrées dans un fichier informatisé par La Boite Immo agissant comme Sous-traitant du traitement pour la gestion de la clientèle/prospects de l'Agence / du Réseau qui reste Responsable du Traitement de vos Données personnelles. La base légale du traitement repose sur l'intérêt légitime de l'Agence / du Réseau. Elles sont conservées jusqu'à demande de suppression et sont destinées à l'Agence / au Réseau. Conformément à la loi « informatique et libertés », vous disposez des droits d’accès, de rectification, d’effacement, d’opposition, de limitation et de portabilité de vos données. Vous pouvez retirer votre consentement à tout moment en contactant directement l’Agence / Le Réseau. Consultez le site https://cnil.fr/fr pour plus d’informations sur vos droits. Si vous estimez, après avoir contacté l'Agence / le Réseau, que vos droits « Informatique et Libertés » ne sont pas respectés, vous pouvez adresser une réclamation à la CNIL. Nous vous informons de l’existence de la liste d'opposition au démarchage téléphonique « Bloctel », sur laquelle vous pouvez vous inscrire ici : https://www.bloctel.gouv.fr Dans le cadre de la protection des Données personnelles, nous vous invitons à ne pas inscrire de Données sensibles dans le champ de saisie libre.
Ce site est protégé par reCAPTCHA, les Politiques de Confidentialité et les Conditions d'Utilisation de Google s'appliquent.

Découvrir nos outils